欢迎您登陆‘开原市起重机总厂’企业网站!
 
   开原市起重机总厂始建于1964年,2008年由赵玉久投资重新组建,年产能力300台3800吨,产品销往全国及出口澳大利亚等国。门式起重机,单梁起重机 ,双梁起重机,非标起重机,龙门起重机,防爆起重机

    手机:13358955999。




门桥起重机
单梁起重机
双梁起重机
龙门起重机
防爆起重机
非标起重机
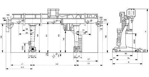
MG型箱型龙门起重机

本起重机为一般用途起重机,适用于各厂矿、企业的露天固定跨间作一般装卸及起重运输工作。

本机按使用繁忙程度分为重级中级两种工作制度。

本机可分为桥架大车运行机构、小车、电动设备等多部分构成,全部机构均在司机室内操纵并有防雨设备。

本机具有起重量大,跨度规格多,工作平稳,安全,适用范围广泛等优点。

用户可根据实际要求在定范围内选用不同起重量和跨度的起重机。

L型箱型龙门起重机

本系列产品是单主梁门起重机系列产品。整机结构新颖、工艺性好、操作灵活平稳、安全可靠。

主要特点:

①桥架采用箱形单梁、L型单腿焊接结构,增大作业空间并便于运输安装与维修。

②小车导电采用工字钢轨电缆导电新装置。

③零部件标准化、系列化、通用化。

④起重机供电形式为电缆卷筒式和滑触线式、电缆卷筒式为左端,滑触式为右端。

⑤司机室视野开阔、内设凸输控制器操纵,操作灵活、工作舒适,还可根据要求加设风扇、热风装置。

本产品适用于露天仓库、料场、铁路货站、海港码头货场等装卸搬运,还可配多种专用吊具进行特殊作业,选用时应注明工作环境的最高、最低气温及电源种类等技术要求,还可根据用户要求的跨度设计制造。

版权所有: 开原市起重机总厂   地 址:辽宁省开原市工业区铁西北街86号    联系电话:024-73715035 024-73614554 024-73715036
手机:13358955999   Email:KYQIZHONGJI@163.COM     辽ICP备10017280号-1   网站制作:大友科技